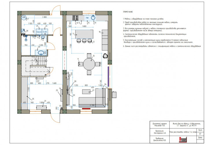
Дипломный проект студентки курса "Дизайн Интерьера" Виктории Саковой
Объектом дипломного проекта является первый этаж частного дома.
Общая площадь дома - 210 м²
Высота потолка - 3110 мм.
Заказчиками является семья из пяти человек: мужчина 38 лет, женщина 35 лет, трое детей ( дочь 9 лет, сыновья 7 и 6 лет).
Общая площадь дома - 210 м²
Высота потолка - 3110 мм.
Заказчиками является семья из пяти человек: мужчина 38 лет, женщина 35 лет, трое детей ( дочь 9 лет, сыновья 7 и 6 лет).
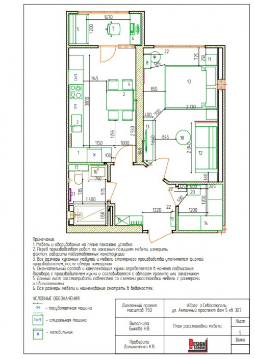
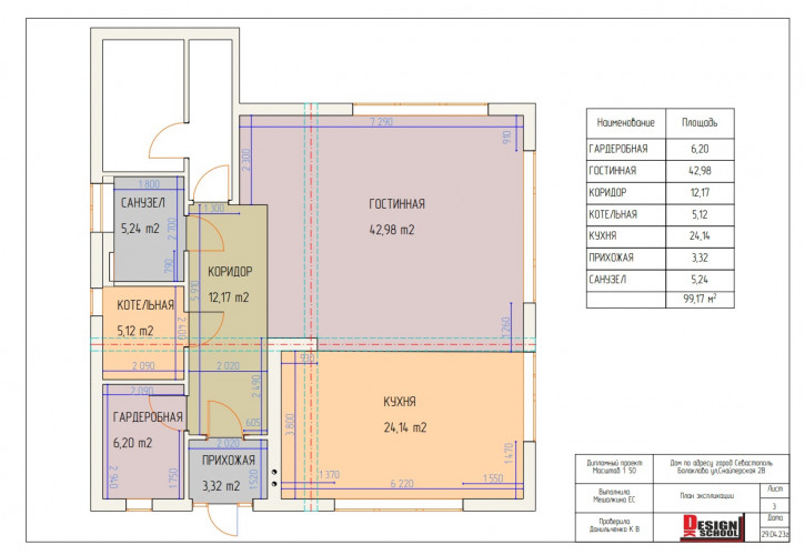
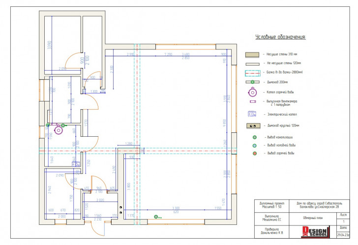
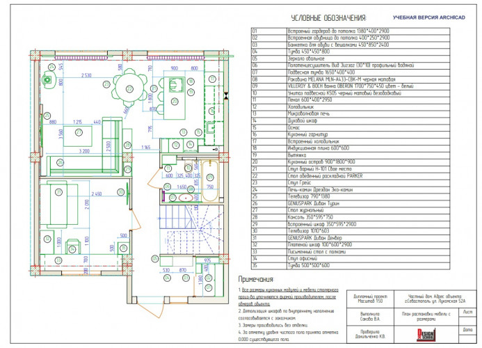
Дипломный проект студентки "Дизайн Интерьера" Ольги Пискун
Объектом дипломного проектирования является первый этаж частного дома
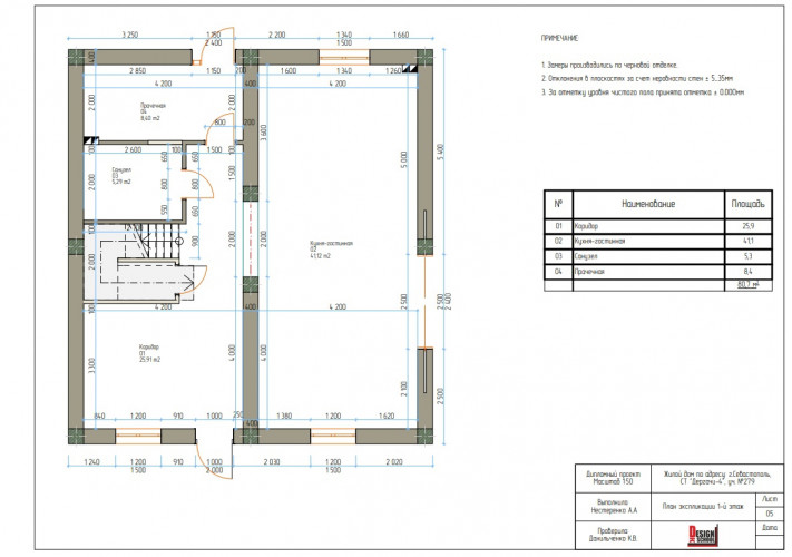
1. Площадь первого этажа: 74,5 м2
2. Высота потолков черновая: 3,0 м
Описание заказчиков:
Заказчиками является семья из 4х человек (женщина 43 года, мужчина 43 года, младший ребенок девочка 10 лет, старший ребенок мальчик 15 лет).
Мужчина работает в будние дни, дети находятся в школе в будние дни, женщина домохозяйка. Увлечения семьи: рыбалка, путешествия, у дочери современные танцы.
Пожелания заказчиков:
Стилевые предпочтения заказчиков – современный дизайн интерьера (артдеко, контемпорари)
Цветовые предпочтения – бежевый, голубой, серый, бардо.
Материалы – под натуральное дерево, мрамор, золото.
1. Площадь первого этажа: 74,5 м2
2. Высота потолков черновая: 3,0 м
Описание заказчиков:
Заказчиками является семья из 4х человек (женщина 43 года, мужчина 43 года, младший ребенок девочка 10 лет, старший ребенок мальчик 15 лет).
Мужчина работает в будние дни, дети находятся в школе в будние дни, женщина домохозяйка. Увлечения семьи: рыбалка, путешествия, у дочери современные танцы.
Пожелания заказчиков:
Стилевые предпочтения заказчиков – современный дизайн интерьера (артдеко, контемпорари)
Цветовые предпочтения – бежевый, голубой, серый, бардо.
Материалы – под натуральное дерево, мрамор, золото.
Дипломная работа Розы Магдесян
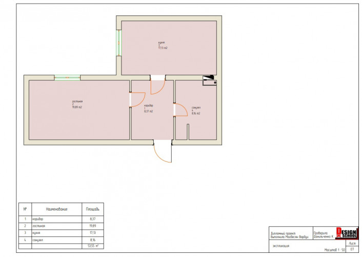
Объектом дипломного проектирования является 1-комнатная квартира в г. Пятигорске.
Общая площадь: 54 м²
Высота потолков: 3000 м.
Квартира выполнена для сдачи посуточно, в основном будет сдаваться для 2-х человек. В квартире предусмотрен большой раскладной диван, телевизор.
Пожелания заказчиков:
Стилевые предпочтения: современный дизайн интерьера
(минимализм)
Цветовые предпочтения: коричневый, серый
Материалы: дерево, мрамор темный
Общая площадь: 54 м²
Высота потолков: 3000 м.
Квартира выполнена для сдачи посуточно, в основном будет сдаваться для 2-х человек. В квартире предусмотрен большой раскладной диван, телевизор.
Пожелания заказчиков:
Стилевые предпочтения: современный дизайн интерьера
(минимализм)
Цветовые предпочтения: коричневый, серый
Материалы: дерево, мрамор темный
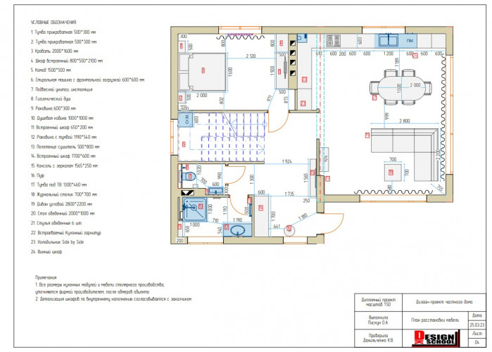
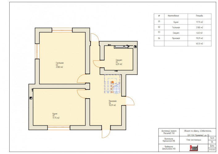
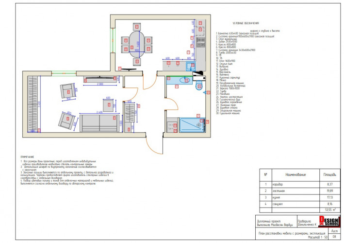
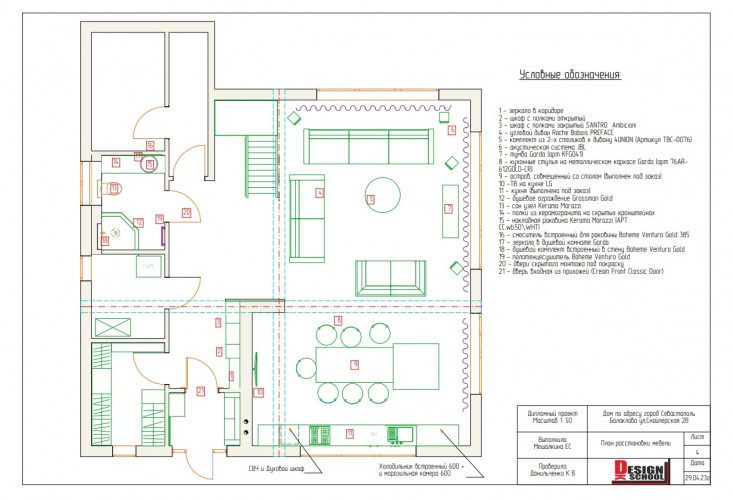
Дипломная работа Карпинской Ирины
Объектом дипломного проекта является жилой дом.
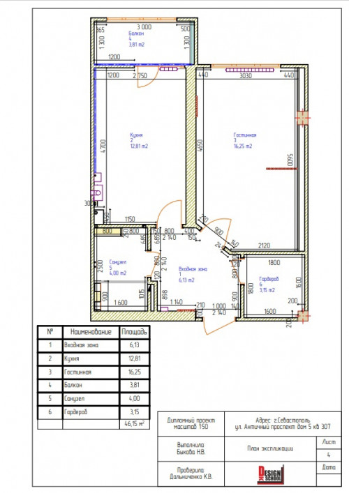
Общая площадь дома 65, 13 м².
Высота потолков 2, 8 м.
Заказчиком является семья из трёх человек (муж, жена и ребёнок).
Заказчиком были поставлены задачи:
1. Жильё является вторичным и было приобретено в состоянии "как есть" 12 лет назад и исполнено в тёмных мрачных оттенков. Проживание в такой атмосфере заказчика угнетает и хочется проживать в тёплом, спокойном, нежном интерьере.
2. Изначально заказчик пожелал объединить кухню и гостиную в одно помещение, разместив на просторном помещении кухни-гостиной отдельно стоящий кухонный остров и зону для отдыха.
После консультации с профильными специалистами выяснилось, что стены являются несущими и демонтировать их не представляется возможным. Таким образом, мы с заказчиком, пришли к компромиссу: стены не демонтируем, а взамен кухонного острова уставляем устанавливаем барную стойку, вместо зоны отдыха ставим диван.
Общая площадь дома 65, 13 м².
Высота потолков 2, 8 м.
Заказчиком является семья из трёх человек (муж, жена и ребёнок).
Заказчиком были поставлены задачи:
1. Жильё является вторичным и было приобретено в состоянии "как есть" 12 лет назад и исполнено в тёмных мрачных оттенков. Проживание в такой атмосфере заказчика угнетает и хочется проживать в тёплом, спокойном, нежном интерьере.
2. Изначально заказчик пожелал объединить кухню и гостиную в одно помещение, разместив на просторном помещении кухни-гостиной отдельно стоящий кухонный остров и зону для отдыха.
После консультации с профильными специалистами выяснилось, что стены являются несущими и демонтировать их не представляется возможным. Таким образом, мы с заказчиком, пришли к компромиссу: стены не демонтируем, а взамен кухонного острова уставляем устанавливаем барную стойку, вместо зоны отдыха ставим диван.
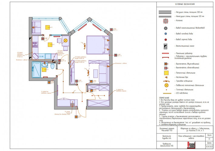
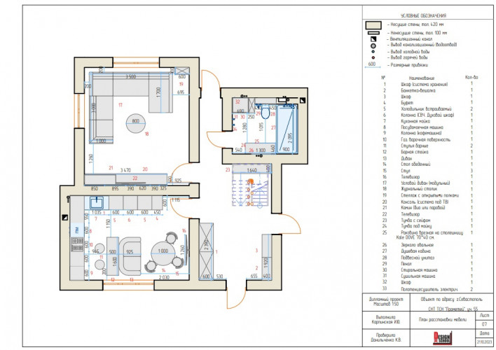
Дипломная работа нашей студентки Буровой Александры
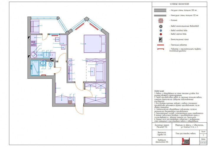
Объектом дипломного проекта является однокомнатная квартира.
Общая площадь квартиры 49,5 м²
Высота потолков 2,8 м.
Заказчиком является мужчина 24 лет, военнослужащий.
Были поставлены следующие задачи:
1. Создать лаконичное, функциональное пространство для комфортного времяпровождения;
2.Организовать lounge зону на балконе;
3. Составить цветовое решение, основанное на пожеланиях заказчика: преимущественно спокойные тона, с добавлением тёмных, акцентных цветов;
4. Рассмотреть несколько вариантов расстановки мебели в каждом помещении;
5. Подобрать предметы интерьера, светильники, материалы и аксессуары аксессуары, подходящие по свойствам и формам общему стилевому направлению и образу интерьера.
Пожеланием заказчика было создание современного, сдержанного, комфортного интерьера с элементами брутализма и минимализма.
Общая площадь квартиры 49,5 м²
Высота потолков 2,8 м.
Заказчиком является мужчина 24 лет, военнослужащий.
Были поставлены следующие задачи:
1. Создать лаконичное, функциональное пространство для комфортного времяпровождения;
2.Организовать lounge зону на балконе;
3. Составить цветовое решение, основанное на пожеланиях заказчика: преимущественно спокойные тона, с добавлением тёмных, акцентных цветов;
4. Рассмотреть несколько вариантов расстановки мебели в каждом помещении;
5. Подобрать предметы интерьера, светильники, материалы и аксессуары аксессуары, подходящие по свойствам и формам общему стилевому направлению и образу интерьера.
Пожеланием заказчика было создание современного, сдержанного, комфортного интерьера с элементами брутализма и минимализма.